дома search
коды
типология
использовать
категория
город
зона
описание
цена
кв.м.
порядок
ПОИСК
<< назад
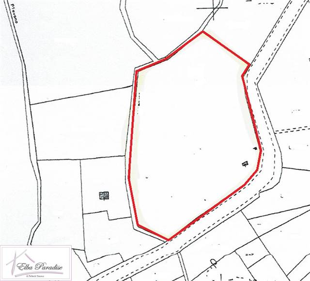
СЕЛЬСКОХОЗЯЙСТВЕННАЯ ЗЕМЛЯ В КАПОЛИВЕРИ
Сельскохозяйственная земля
Земля 9630 квадратных метров полуплоское пятна в солнечном месте с отличной экспозицией, в несколько минутах от деревни Каполивери с частным подъездного дорогой.

* Отличная инвестиция

Каполивери:
Родился на холме в стратегическом положении и контролировал горизонт на юг и запад. Характерная укрепленная средневековая деревня, с особыми аллеями с арками, которые охватывают красоту площади, местом встречи для иностранцев и жителей деревни. Capoliveri - 2-я самая богатая страна в Италии, известная тем, что создала яхту capoliveri, вход в заливе Мола, где каждый год проходят различные лодки и яхты со всей Европы. Местами, которые нельзя упустить, являются: Святилище Мадонны делле Граци и Святилище Мадонны делла Неве. Основные пляжи, которые он предлагает, являются: Zuccale, Barabarca, The Sticks, Мадонна делле Грацие, Morcone, Pareti, Innamorata, Punta Каламита, Remaiolo, Calanova, Феррато, Malpasso, Straccoligno, Naregno, Lacona, Laconella, Margidore, Acquarilli, северяне, Felciaio , Лидо. Elbaparadise Immobiliare предоставляет для продажи вашей недвижимости большую базу данных, обновленную в режиме реального времени с выбранными клиентами и серьезно интересующуюся ценой и типом, не теряя времени! рекламная кампания с контекстными объявлениями производится, включенных в опубликованный рекламных площадей в газетах промышленности (например, Secondamano Il Sole 24 Ore, Il Tirreno, Purple, The Free Florence, La Repubblica, путешествия и т.д ..), на больших порталах итальянский язык (например, Immobiliare.it, Casa.it, Case24, E-Bay и др ..), кино и телевидение (канал 670 ДТТ, теленовость), с печатная брошюра поставляется з / или почты и ежегодно обновляются, наконец, в сети около 900 итальянских и европейских агентств недвижимости, которые сотрудничают с нами в прозрачности и серьезности, создавая тем самым реальную возможность продажи вашей недвижимости за короткое время. только с нами! * По этим и многим другим причинам, доверенным нам .., и вы будете рядом, чтобы получить лучшую рекламу, с удовлетворением и простотой.

*Elba Paradise Immobiliare-Via R. Fucini, 14 57037 Portoferraio (LI) *Tel/Fax: +39.0565.919819 - *Mobile: 349.0959724
*E-mail: info@elbaparadiseimmobiliare.it
*Sito Web: www.elbaparadiseimmobiliare.it
цена
65 000,00 EUR
кв.м.
9630
класс
NC
местный
1
Уровень недвижимости
Средний

КАРТА

Via di Mola , Capoliveri (LI)
mail@miosito.com +39 031 123456
Cookie preference